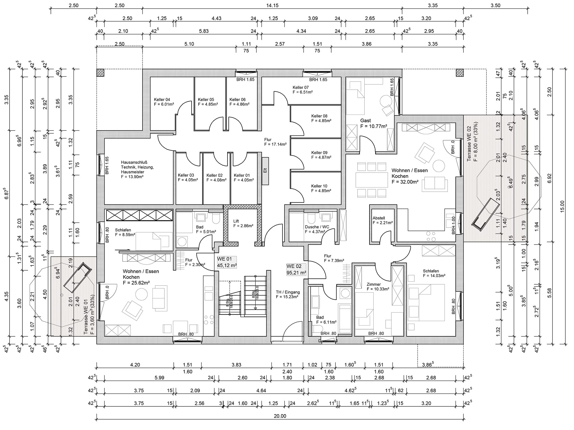
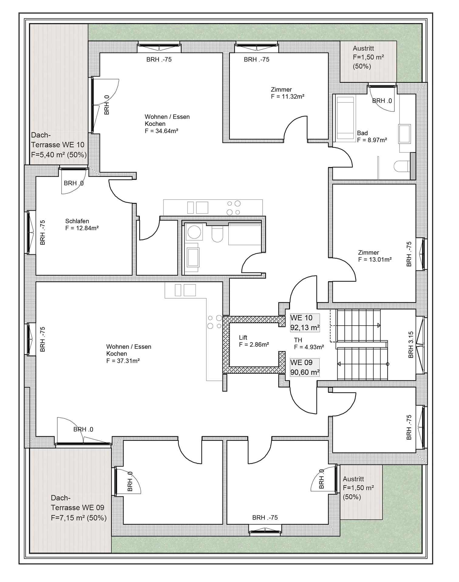
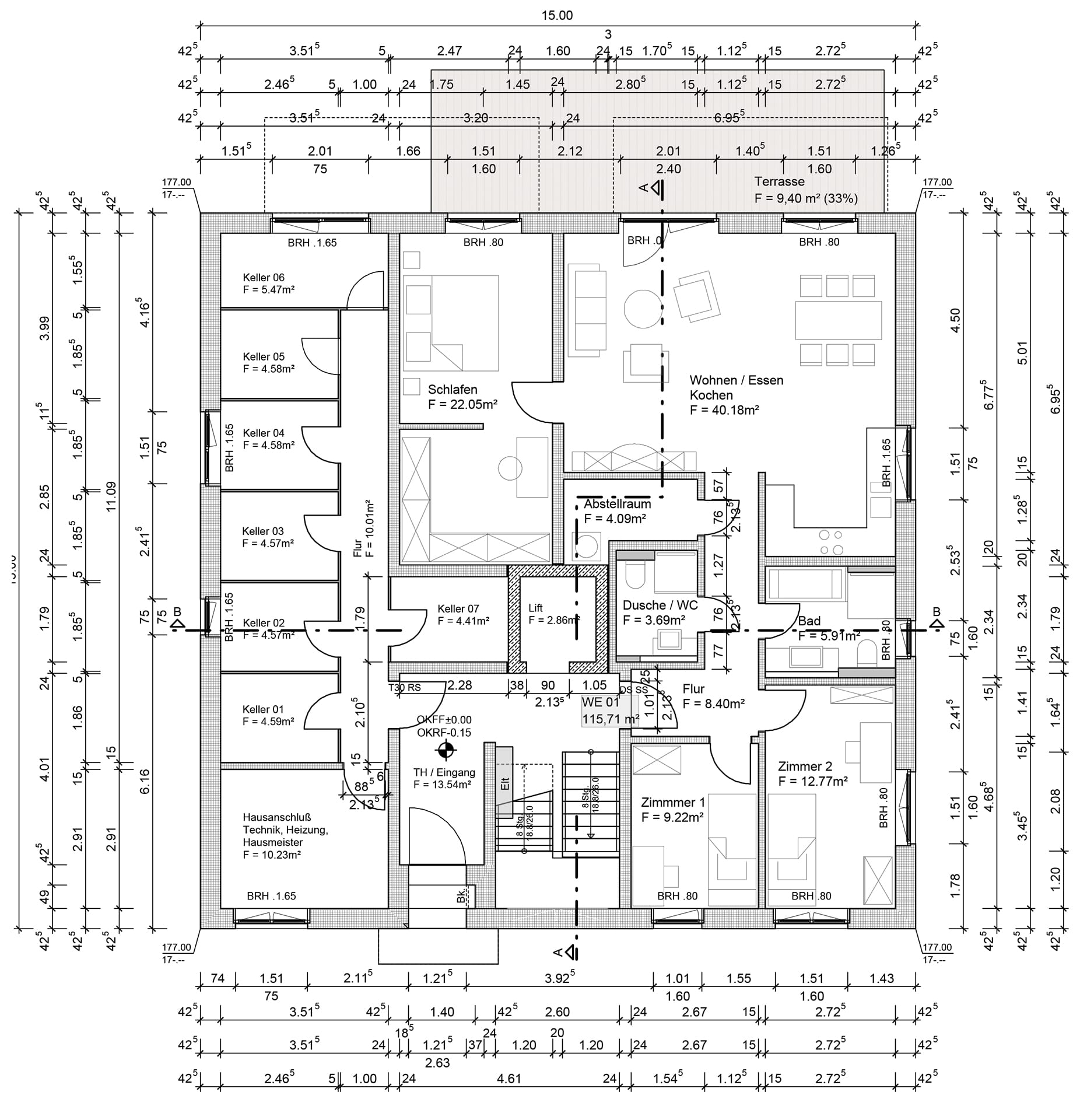
Beschreibung
Neubau von zwei Mehrfamilienhäusern in exponierter Lage Freitals
Fläche
1.400 m² Neubau
Leistungen
Projektentwicklung, Planung, Verkauf, Errichtung
Projektvolumen
4,00 Mio. € Neubau
Zeitraum
ab 11/2018
Status
Projektentwicklung, Genehmigungsplanung, Verkaufsbeginn
